Funkce uživatele
Moje oblíbené nemovitosti Moje oblíbené nemovitosti Moje filtry Moje filtry Upravit profil Upravit profil Vložit inzerát Vložit inzerát
Region
mapa

1 978 000 Kč

Hypotéku?
  • Cena včetně provize RK a právních služeb
Hypotéku?

Zjistěte zdarma a nezávazně své možnosti hypotéky u této nemovitosti.

Do oblíbených
Do oblíbených
Nemovitost nabízí
Ing. Zdeněk Florián

Základní informace

ID nemovitosti 3401
Plocha celková 586 m²
Datum vložení včera
Plocha pozemku 586 m²
Cena 1 978 000 Kč
Spočítat hypotéku

Popis nemovitosti

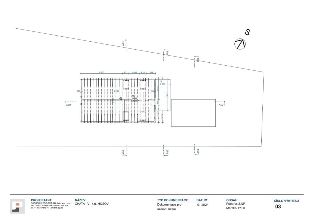
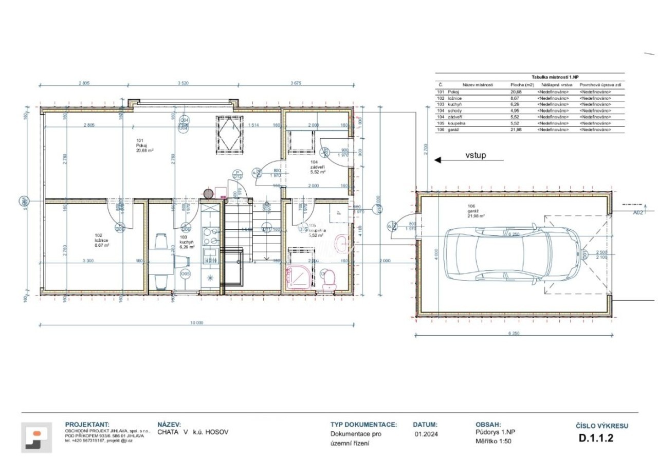
Lokalita: Jihlava, katastrální území Hosov.Nabízíme vám jedinečnou šanci získat jeden ze dvou výjimečných stavebních pozemků, ideálních pro výstavbu vašeho nového, moderního bydlení ve formě dřevostavby. A co je nejdůležitější: veškerá příprava je hotová! Co získáte? Platné stavební povolení pro výstavbu (projektováno jako \"chata pro rekreaci\" s garáží – označení upraveno pro soulad s územním plánem, ale je určené pro dlouhodobé bydlení). Inženýrské sítě: Samostatná přípojka elektřiny nově přivedená na pozemek. Vlastní vrtaná studna (hloubka 33 metrů) zajišťující nezávislý zdroj vody. Připravený projekt: Navržena je moderní budova o celkové obytné ploše 120 m² (60 m² přízemí + 60 m² podkroví) s prostornou garáží (24 m²) a terasou nad ní. Atraktivní výhledy: Návrh klade důraz na velkoplošná okna a otevřené výhledy do přírody a na řeku Jihlavu. Bezpečné umístění: Obě navržené budovy jsou umístěny mimo aktivní záplavovou zónu. Dostatek času: Stavební povolení je platné až do 30. 9. 2030 s možností prodlužování tohoto termínu.Přístup: Příjezd je zajištěn po asfaltové místní komunikaci. Možnost výběru ze dvou pozemků:1. (parc.č. 259/1 + 788) 586 m² s cenou 1 978 000,- Kč2. (parc.č. 259/7)554 m² s cenou 1 882 000,- KčDůležité: Vlastník se rozhodl prodat pouze jeden z těchto pozemků, na druhém plánuje stavět vlastní bydlení. Nezáleží na tom, který si vyberete – volba je jen na vás.Kompletní projektová dokumentace je schválená stavebním úřadem v Jihlavě a je k dispozici. I když je vydáno povolení na dvě stavby, každou lze zkolaudovat samostatně a nezávisle. Bližší informace Vám rádi poskytneme při osobním jednání.

Poloha na mapě

Dojezdová vzdálenost

Zadejte cílovou adresu
Zadejte cílovou adresu
Zadejte cílovou adresu

Nemovitost nabízí

 Ing. Zdeněk Florián
Ing. Zdeněk Florián
Telefon zobrazit telefon

Nemovitost nabízí

 Ing. Zdeněk Florián
Ing. Zdeněk Florián
Telefon zobrazit telefon